Valtakatu 20, 94100 Kemi
Osoite: Valtakatu 20, 94100 Kemi
Kunta: Kemi
Tilatyyppi: liikehuoneisto
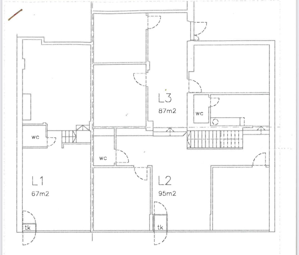
Neliöt: 249 m2
Muut tilat: kolme wc:tä, varastotilaa
Esittely: Katutason sisäänkäynnillä oleva liikehuoneistokokonaisuus, joka sisältää useita toimistohuoneita sekä tauko- kokoontumis- ja varastotiloja. Tila on mahdollista vuokrata kokonaisena tai siitä voidaan erottaa kaksi erillistä liiketilaa, joissa molemmissa oma sisäänkäynti. Tiloissa on tehty pintaremonttia, ne ovat valoisat ja toimivat moneen eri käyttötarpeeseen. Tilat ovat vapaana viimeistään 1.4.2026. Lisää kuvia tulossa.
Vakuus toimitettava vuokranantajalle ennen avainten luovutusta.
Soittele, niin sovitaan näyttöaikaa! Tervetuloa tutustumaan!
Vuokra: neuvoteltavissa
Vesimaksu: sisältyy vuokraan
Muut kulut: Sähkö omalla sopimuksella kulutuksen mukaan.
Vakuus: neuvoteltavissa
Vapautuminen: 1.4.2026










